
UPDATED:
Key Details
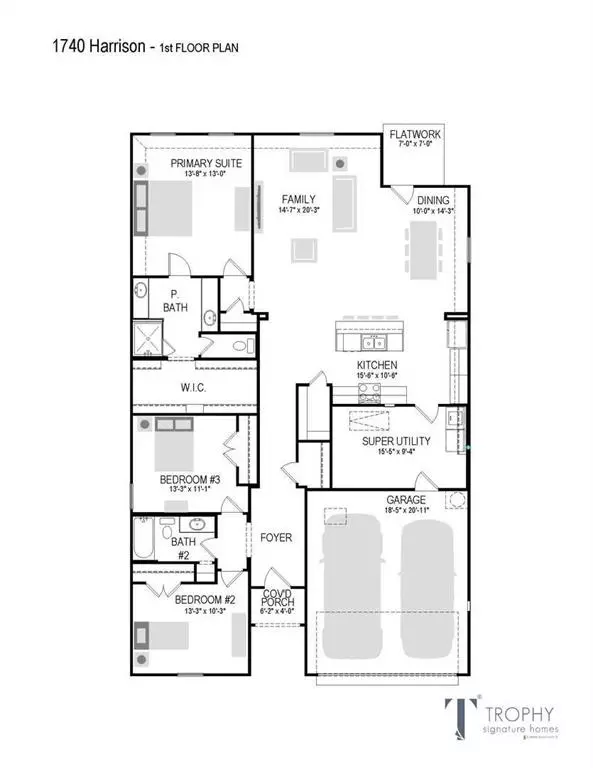
Property Type Single Family Home
Sub Type Single Family Residence
Listing Status Active
Purchase Type For Sale
Square Footage 1,965 sqft
Subdivision Belmont
MLS Listing ID 21099123
Style Contemporary/Modern,Craftsman
Bedrooms 3
Full Baths 2
HOA Fees $775/ann
HOA Y/N Mandatory
Year Built 2025
Lot Size 4,599 Sqft
Acres 0.1056
Lot Dimensions 40x115
Property Sub-Type Single Family Residence
Property Description
Location
State TX
County Denton
Community Community Pool, Curbs, Jogging Path/Bike Path, Playground, Tennis Court(S)
Direction Follow Dallas North Tollway N and S Dallas Parkway to W Punk Carter Parkway in Celina, Continue on W Punk Carter Parkway and Turn Right onto S Legacy Drive. Turn Left onto County Road 1086,FM428 W (Springhill Road), Follow FM428 W to Stonehurst Trail in Aubrey, Turn Right on Belmont Ave
Rooms
Dining Room 1
Interior
Interior Features Cable TV Available, Decorative Lighting, High Speed Internet Available, Open Floorplan, Pantry, Vaulted Ceiling(s), Walk-In Closet(s)
Heating Central, Natural Gas
Cooling Ceiling Fan(s), Central Air, Zoned
Flooring Carpet, Luxury Vinyl Plank, Tile
Appliance Dishwasher, Disposal, Electric Cooktop, Electric Oven, Electric Range, Microwave, Tankless Water Heater
Heat Source Central, Natural Gas
Laundry Electric Dryer Hookup, Utility Room, Full Size W/D Area, Washer Hookup
Exterior
Exterior Feature Covered Patio/Porch, Rain Gutters, Lighting, Private Yard
Garage Spaces 2.0
Fence Back Yard
Community Features Community Pool, Curbs, Jogging Path/Bike Path, Playground, Tennis Court(s)
Utilities Available Curbs
Roof Type Composition
Total Parking Spaces 2
Garage Yes
Building
Story One
Foundation Slab
Level or Stories One
Structure Type Brick,Rock/Stone,Siding
Schools
Elementary Schools Jackie Fuller
Middle Schools Aubrey
High Schools Aubrey
School District Aubrey Isd
Others
Virtual Tour https://www.propertypanorama.com/instaview/ntreis/21099123





